The Avon Collection by Belldinni, available at Trendy Doors, seamlessly blends classical elegance with refined high-tech style, combining straight lines, eco-friendly materials, and modern technologies to meet the highest industry standards. These factory prefinished doors feature a stile and rail construction, symbolizing the finest traditions of American craftsmanship with quality, beauty, and proven durability. Constructed using linear pieces of lumber assembled into a single structure, Avon doors ensure functionality and high performance while offering customization options to meet diverse style and project standards. Crafted with engineered stiles and rails within a pine frame, and featuring MDF panels for privacy and sound reduction, these doors are both robust and stylish. The collection is finished with an eco-friendly polypropylene (PP) coating, available in finishes like the deep grey Dark Urban with a vintage plaster pattern, the natural-toned Veralinga Oak, Ribeira Ash with a tender light grey wood pattern, and the noble shade of Loire Ash, all of which are scratch- and water-resistant and immune to sunlight fading.
The Avon Collection also includes models with glass, designed to introduce natural light into your living area while adding a stunning decorative element. These doors, such as the Avon 5 Lite Vetro or Avon 07-07 Vetro, feature tempered safety glass with a white frosted style and decorative translucent frost, allowing light to filter through while ensuring privacy. Configurations vary, with options like 5 lites, 10 faux lites, or full-height glass panels adorned with horizontal golden strips, often in a Shaker or French style, creating a light and spacious ambiance. Conversely, Avon models without glass offer a solid, soundproof surface, focusing on the classic stile and rail construction and the eco-friendly PP finish, making them ideal for spaces where privacy and noise reduction are priorities.
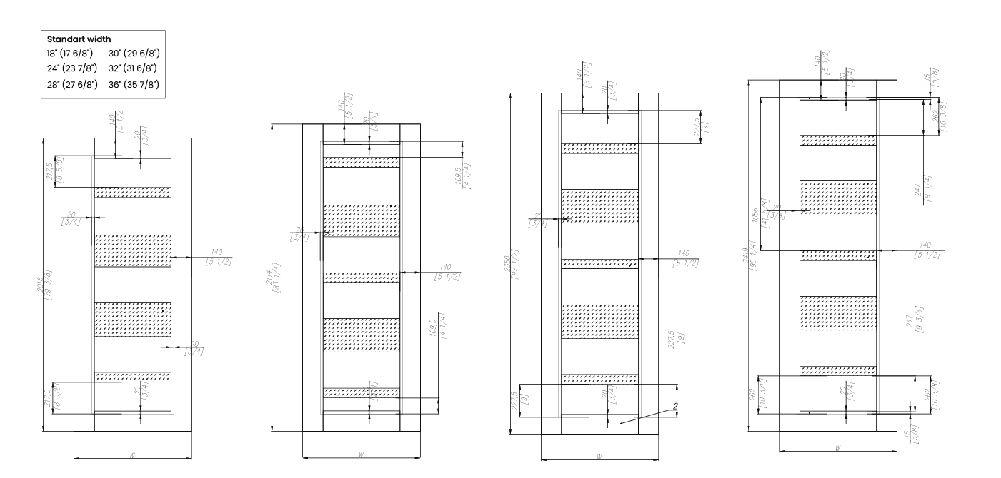
The Avon 07-01 Vetro model features five rectangular MDF panels alternating with four lites, with two central lites of 9-1/8" high and two additional lites of 2-3/4" high, offering a modern design with engineered wood stiles and rails for strength.
















