The Modular Collection by Belldinni, available at Trendy Doors, combines the finest traditions of American craftsmanship with contemporary design, offering a harmonious blend of classic style and modern functionality. These interior doors feature a solid stile and rail construction, utilizing linear pieces of lumber assembled into a single structure to ensure durability, reliability, and high performance. Crafted with engineered stiles and rails within a pine frame, the doors in this collection are built for strength and longevity, with MDF panels providing privacy and sound reduction. The collection is finished with an eco-friendly polypropylene (PP) coating, mimicking the texture of real wood while offering enhanced durability, available in sophisticated colors like the grey-brown tones of Gray Oak, the creamy tones of Shambor, the timeless white shade of Bianco Noble, and the clean appeal of Snow White.
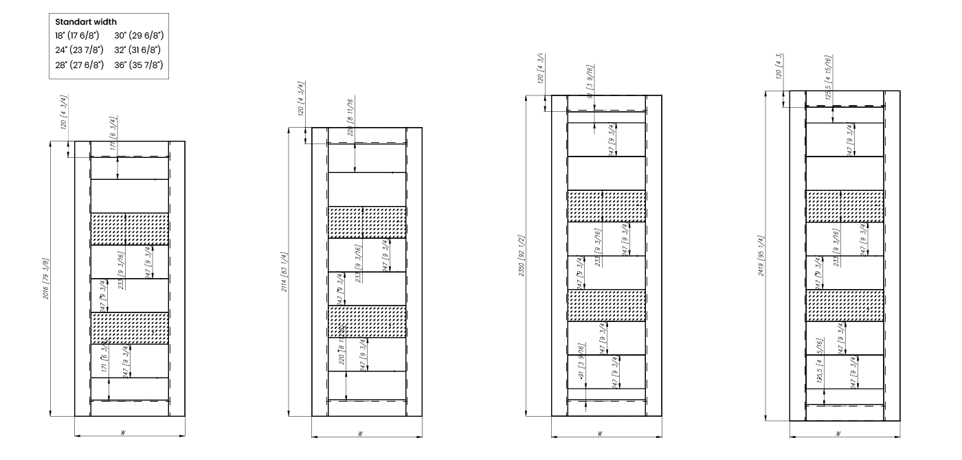
The Berta Vetro model is an elegant 2-lite door with a sophisticated design, featuring stiles, rails, and 6 horizontal MDF panels divided by 9-3/16" high lites, with 2 connected panels between the lites adding a decorative touch while ensuring privacy.


















