The Modular Collection by Belldinni, available at Trendy Doors, combines the finest traditions of American craftsmanship with contemporary design, offering a harmonious blend of classic style and modern functionality. These interior doors feature a solid stile and rail construction, utilizing linear pieces of lumber assembled into a single structure to ensure durability, reliability, and high performance. Crafted with engineered stiles and rails within a pine frame, the doors in this collection are built for strength and longevity, with MDF panels providing privacy and sound reduction. The collection is finished with an eco-friendly polypropylene (PP) coating, mimicking the texture of real wood while offering enhanced durability, available in sophisticated colors like the grey-brown tones of Gray Oak, the creamy tones of Shambor, the timeless white shade of Bianco Noble, and the clean appeal of Snow White.
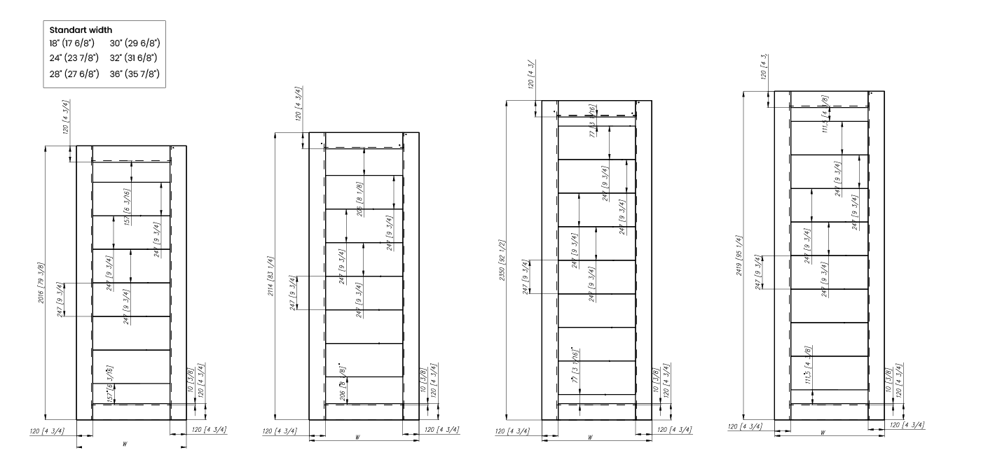
The Ermi model features an intricate design with stiles, rails, and 8 horizontal MDF panels, offering a solid, soundproof surface that emphasizes privacy and a classic aesthetic without glass lites.












